Carriquiry - Propiedades

OPORTUNIDAD TERRENOS EN VENTA EN BARRIO PRIVADO APTOS PARA PROPIEDAD HORIZONTAL

ref. 9224

Compartir
458 m2

venta

usd 120.000

SOLICITAR mÁS INFORMACIÓN

DESCRIPCIÓN

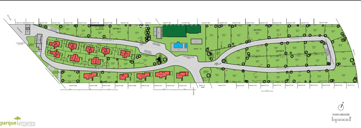
Barrio privado en Parada 35 de Playa Mansa — a solo 200 metros del mar.
Un entorno ideal para vivir todo el año, rodeado de naturaleza y con servicios de primer nivel.
El barrio cuenta con seguridad 24 hs, piscina de uso común, gimnasio, cancha de tenis, cancha de pádel y una amplia barbacoa para eventos de hasta 50 personas.
Con bajos gastos comunes y un ambiente familiar, se presenta como una excelente oportunidad tanto para vivir como para invertir.

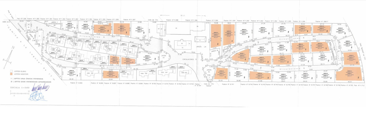
Actualmente se ofrecen terrenos en venta con derecho a construir (permiso de sobre–elevación), lo que permite desarrollar una o dos unidades por lote según su tamaño.
Esto brinda una oportunidad única para arquitectos, desarrolladores o familias que busquen construir su casa soñada o generar rentabilidad mediante un dúplex.

Terrenos de 450 a 510 m², con posibilidad de construir dos unidades apareadas tipo dúplex o una casa de hasta 240 m² (120 m² en planta baja y 120 m² en planta alta).
Una oportunidad excelente para quienes buscan invertir en un proyecto de doble renta o construir una casa con gran jardín y espacios amplios.
Derecho de construcción: dos unidades (dúplex).

💡 Ventajas clave

A solo 200 m del mar.

Seguridad, amenities y bajos gastos comunes.

Permisos de construcción ya aprobados.

Valores de lanzamiento, con alto potencial de revalorización.

comodidades
Barrio
Pinares
Superficie m2
458
Frente mts
27
Fondo mts
16
Edificable m2
240
Arbolado
Si
Luz
Si
Agua
Si
Apto PH
Si
Cantidad Pisos
2

Solicitar más información

Whatsapp Carriquiry
Chatea con nosotros