Carriquiry - Propiedades

TERRENO EN VENTA EN BARRIO CERRADO PARQUE PINARES A 200 MTS DE LA PLAYA

ref. 9221

Compartir
267 m2

venta

usd 95.000

SOLICITAR mÁS INFORMACIÓN

DESCRIPCIÓN

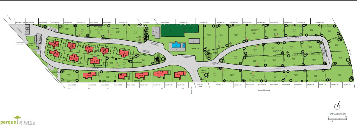
Barrio privado en Parada 35 de Playa Mansa — a solo 200 metros del mar.
Un entorno ideal para vivir todo el año, rodeado de naturaleza y con servicios de primer nivel.
El barrio cuenta con seguridad 24 hs, piscina de uso común, gimnasio, cancha de tenis, cancha de pádel y una amplia barbacoa para eventos de hasta 50 personas.
Con bajos gastos comunes y un ambiente familiar, se presenta como una excelente oportunidad tanto para vivir como para invertir.

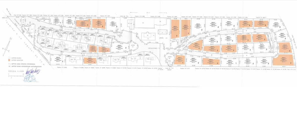
Actualmente se ofrecen terrenos en venta con derecho a construir (permiso de sobre–elevación), lo que permite desarrollar una o dos unidades por lote según su tamaño.
Esto brinda una oportunidad única para arquitectos, desarrolladores o familias que busquen construir su casa soñada o generar rentabilidad mediante un dúplex.

Terreno de aproximadamente 280 m², habilitado para construir una única unidad de hasta 140 m² (70 m² en planta baja y 70 m² en planta alta).
Una opción accesible dentro de un barrio con todos los servicios, ideal para quienes desean comenzar su casa propia cerca del mar.
Derecho de construcción: una unidad.

💡 Ventajas clave

A solo 200 m del mar.

Seguridad, amenities y bajos gastos comunes.

Permisos de construcción ya aprobados.

Valores de lanzamiento, con alto potencial de revalorización.

comodidades
Barrio
Pinares
Superficie m2
267
Edificable m2
140
Arbolado
Si
Luz
Si
Agua
Si
Apto PH
No
Cantidad Pisos
2

Solicitar más información

Whatsapp Carriquiry
Chatea con nosotros